- Woonoppervlakte
- Circa 128 m²
- Perceeloppervlakte
- Circa 342 m²
- Bouwjaar
- Gebouwd in 1957
- Aantal kamers
- 7 kamers (4 slaapkamers)
In de mooie, rustige woonwijk "TORENLANDEN", op loopafstand van het centrum van de stad, staat deze gemoderniseerde TWEE-ONDER-ÉÉN-KAP WONING met nieuw gebouwde stenen garage. De woning beschikt over een lichte woonkamer en luxe open inbouwkeuken, op de verdieping zijn 3 slaapkamers en een moderne badkamer. De vierde slaapkamer bevindt zich op de 2e verdieping. Het geheel staat op een ruime kavel van 342 m² eigen grond en is gebouwd in 1957.
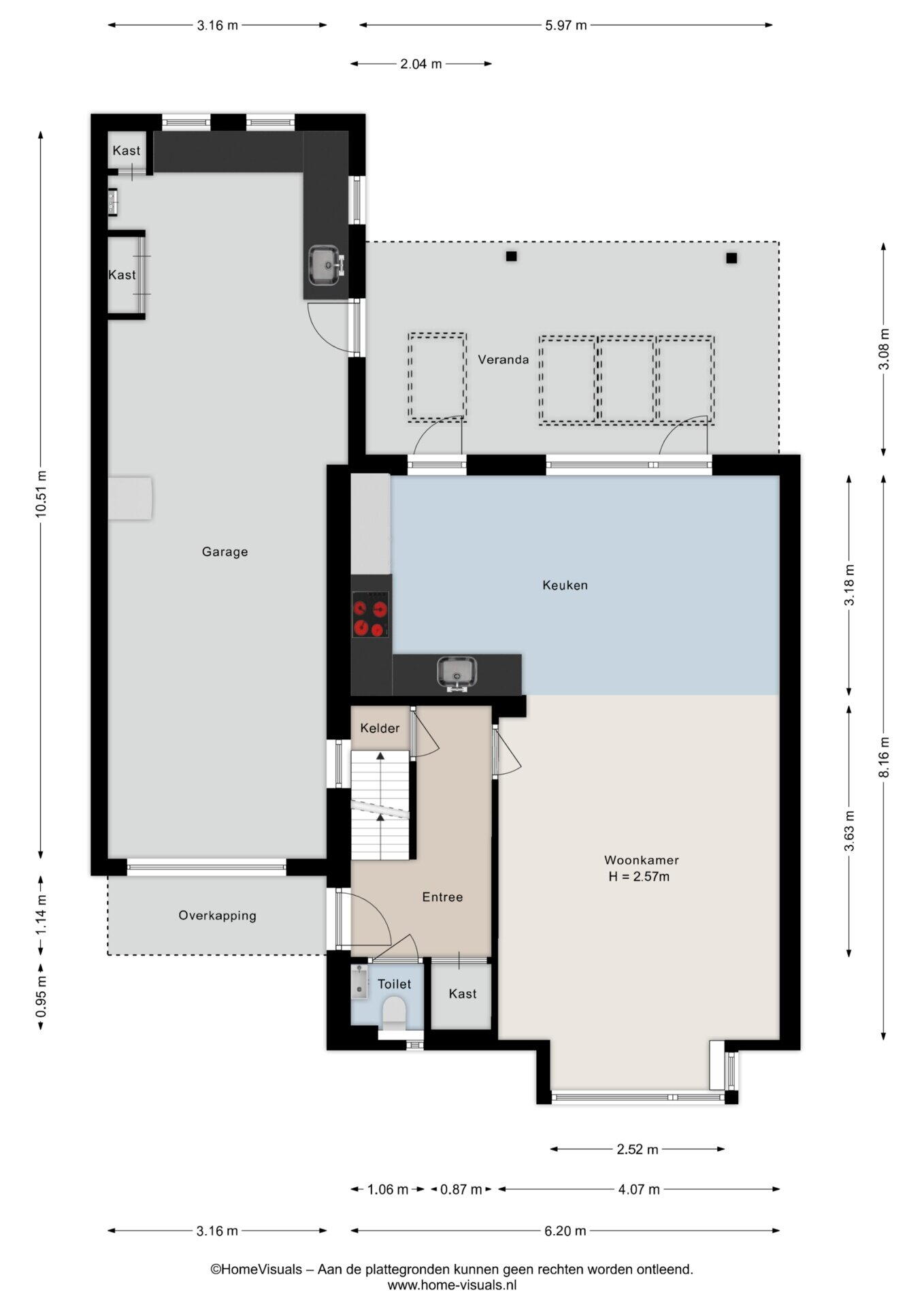
INDELING WONING:
Zijentree, hal met praktische garderobekast, trapopgang, toegang tot provisiekelder en toiletruimte met wandcloset en fontein. Mooie woonkamer met betonnen vloer met vloerverwarming afgewerkt met een fraaie PVC vloer. Dankzij de erker is er veel lichtinval in de kamer. Open keuken in hoekopstelling geplaatst in 2021 en voorzien van koel- en vrieskast, inductie kookplaat, vaatwasser en combioven. Tuindeur naar terras en keurig aangelegde tuin.
1e verdieping: overloop met laminaatvloer en praktische inloopkast, moderne badkamer (2016) met dubbel wastafelmeubel, wandcloset en douchecabine. 3 slaapkamers waarvan de voorste is voorzien van een balkon. Vaste trap naar de 2e verdieping. Overloop met dakraam en witgoedaansluitingen. Vanaf de overloop toegang tot de 4e slaapkamer, voorzien van een tweede Velux dakraam en een bergkast.
ALGEMEEN:
Deze woning is in 2014 voorzien van een nieuw dak gedekt met pannen en in 2019 is de spouwmuur geïsoleerd. De ruime en geïsoleerde garage is ook in 2019 gebouwd en de begane grond van de woonkamer en keuken is in 2021 voorzien van schuimbeton met vloerverwarming en een fraaie PVC vloer. De woning heeft 10 zonnepanelen die zijn geplaatst in 2021 en tot slot is de woning in 2025 geschilderd. Kortom een uitstekend onderhouden, instapklare woning met een keurig aangelegde tuin met terrasoverkapping, gelegen op het zuidoosten. De woning heeft een energielabel B en wordt verwarmd met een Remeha cv ketel.
Gunstige ligging in een gewilde woonwijk op korte afstand van het centrum van de stad dichtbij alle voorzieningen zoals: NS intercitystation, Theater “De Meenthe”, Bioscoop, verschillende supermarkten en de gezellige binnenstad. De wijk Torenlanden is ruim van opzet met veel openbaar groen en uitstekende verbindingen.
Overdracht
- Vraagprijs
- € 398.000 k.k.
- Status
- Verkocht
- Aanvaarding
- In overleg
Bouw
- Object type
- Eengezinswoning, 2 onder 1 kapwoning
- Soort bouw
- Bestaande bouw
- Bouwjaar
- 1957
- Soort dak
- Zadeldak bedekt met pannen
Oppervlakte en inhoud
- Woonoppervlakte
- 128 m²
- Perceeloppervlakte
- 342 m²
- Inhoud
- 616 m³
- Overige inpandige ruimte
- 42 m²
- Gebouwgeb. buitenruimte
- 24 m²
Indeling
- Aantal kamers
- 7 kamers (4 slaapkamers)
- Aantal badkamers
- 1 badkamer
- Badkamervoorzieningen
- Toilet, douche, wastafelmeubel
- Aantal woonlagen
- 4 woonlagen
- Voorzieningen
- Dakraam, zonnepanelen, natuurlijke ventilatie
Energie
- Energielabel
- B
- Energielabel registratie
- 19-06-2025
- Isolatie
- Dakisolatie, muurisolatie, vloerisolatie, gedeeltelijk dubbel glas
- Verwarming
- Cv-ketel, vloerverwarming gedeeltelijk
- Warm water
- Cv-ketel
- Cv ketel
- Remeha combiketel gas gestookt uit 2013 (eigendom)
Buitenruimte
- Ligging
- In woonwijk
- Balkon / dakterras
- Balkon
- Tuin
- Achtertuin, voortuin
- Afmetingen achtertuin
- 175 m² (17.5 meter diep en 10 meter breed)
- ligging tuin
- Gelegen op het zuidoosten
Bergruimte
- Schuur / berging
- Vrijstaande houten berging
Garage
- Soort garage
- Aangebouwd steen
- Capaciteit
- 1 auto
- Voorzieningen
- Verwarming, elektra, stromend water
- Isolatie
- Dakisolatie, muurisolatie, vloerisolatie, dubbel glas
Parkeergelegenheid
- Soort parkeergelegenheid
- Op eigen terrein
Energieverbruik in Steenwijk
Energielabel deze woning
Energielabel B
Publicatie energielabel: 19-06-2025
Stroomverbruik per jaar
(Gemiddelde twee onder een kap in Steenwijk)
Gasverbruik per jaar
(Gemiddelde twee onder een kap in Steenwijk)
* Cijfers zijn afkomstig van het CBS en bedoeld als indicatie en kunnen verschillen voor deze woning
Indicatie hypotheeklasten
Eigen inleg:
Spaargeld / overwaarde
Rente:
Laagste 10-jaars rente
Laagste 10-jaars rente
2,76% - Centraal Beheer Groen... - NHG
2,98% - Centraal Beheer Groen... - 80%
Laagste 20-jaars rente
3,19% - Centraal Beheer Groen... - NHG
3,31% - Centraal Beheer Groen... - 80%
Laagste 30-jaars rente
3,34% - Centraal Beheer Groen... - NHG
3,47% - Centraal Beheer Groen... - 80%
Hypotheek:
Bruto maandlasten: € 0 p/m
Netto maandlasten: € 0 p/m
Hoe berekenen we dit?
Het rentepercentage is gebaseerd op de laagste 10-jaars vaste rente voor één hypotheekdeel. De vermelde rente (2.76% met NHG) is gecontroleerd op 26-08-2025. Deze berekening is gebaseerd op een annuïteitenhypotheek die volledig wordt afgelost, waarbij de maandlasten gedurende de gehele looptijd gelijk blijven. De werkelijke rente en netto maandlasten kunnen variëren, afhankelijk van uw persoonlijke situatie en de hypotheekverstrekker. Raadpleeg een financieel adviseur voor een nauwkeurige berekening en advies. Aan deze berekening kunnen geen rechten worden ontleend; het dient enkel als indicatie.
Documentatie
Kadastrale kaart
Leefomgeving
Brochure
Plattegronden PDF
WOZ waarderapport
BAG uittreksel
Bekijk onze website
Bezichtiging
Bod uitbrengen
Waardebepaling
Zoekopdracht
Alles downloaden
Zonnegrenzen bekijken
Op de kaart
Inwoners in Steenwijk
Cijfers voor postcodegebied 8331
- Totaal aantal inwoners
- 10370 inwoners
- Mannen
- 49%
- Vrouwen
- 51%
Inwoners in Steenwijk
Cijfers voor postcodegebied 8331
- tot 15 jaar
- 13%
- 15 tot 25 jaar
- 11%
- 25 tot 35 jaar
- 22%
- 45 tot 65 jaar
- 27%
- 65 en ouder
- 27%
Huishoudens in Steenwijk
Cijfers voor postcodegebied 8331
- Eenpersoons zonder kinderen
- 46%
- Meerpersoons zonder kinderen
- 28%
- Huishoudens zonder kinderen
- 74%
Huishoudens in Steenwijk
Cijfers voor postcodegebied 8331
- Huishoudens met één kind
- 8%
- Huishoudens met meerdere kinderen
- 19%
- Huishoudens met kinderen
- 27%
Woningen in Steenwijk
Cijfers voor postcodegebied 8331
- Woningen voor 1945
- 23%
- Woningen tussen 1945 en 1965
- 17%
- Woningen tussen 1965 en 1975
- 12%
- Woningen tussen 1975 en 1985
- 11%
- Woningen tussen 1985 en 1995
- 11%
Woningen in Steenwijk
Cijfers voor postcodegebied 8331
- Woningen tussen 1995 en 2005
- 16%
- Woningen tussen 2005 en 2015
- 8%
- Woningen na 2015
- 1%
- Huurwoningen
- 60%
- Koopwoningen
- 40%
Overige in Steenwijk
Cijfers voor postcodegebied 8331
- Gemiddelde WOZ waarde
- € 166.000,-
- Personen onder de 65 met uitkering
- 12%
Overige in Steenwijk
Cijfers voor postcodegebied 8331
- Adressen per km²
- 1272
- Stedelijkheid (schaal 1 op 5)
- 60%
Korte feiten over Steenwijk
Steenwijk (Nedersaksisch: Steenwiek of Stienwiek) is een stad in de Nederlandse provincie Overijssel. Het is met 17.115 inwoners de grootste plaats in de gemeente Steenwijkerland en na Kampen de grootste plaats in de Kop van Overijssel.
Hét makelaarshuis van Steenwijk
Op zoek naar een makelaar?
Een huis verkopen of kopen is een belangrijke beslissing in het leven. Het is essentieel om deskundig en objectief advies te krijgen. We brengen in kaart wat u belangrijk vindt en welke wensen u heeft. Een open gesprek vormt de basis voor onze aanpak. Luisteren is een cruciaal onderdeel van ons vak! Wij taxeren de woning en adviseren u over de te hanteren vraagprijs. In overleg met u bepalen we het verkooptraject, inventariseren we de sterke en mindere punten van de woning en stellen we aanbiedingsteksten op. Nadat de fotopresentatie is gemaakt, kan de verkoop daadwerkelijk beginnen. Terwijl wij uw woning verkopen, kunt u zich richten op de volgende stap in uw leven. Aan ons de taak om een geschikte koper voor uw woning te vinden.
HetMakelaarshuis krijgt zijn meeste klanten door aanbevelingen. Waarom? Omdat wij de meest betrouwbare dienstverlening bieden aan onze relaties en zij ons waarderen om onze kennis, bevlogenheid, bereikbaarheid en de zorg en aandacht die wij aan hen besteden.
Bel ons vandaag nog en ervaar het zelf.
Nieuwste reviews
-
Verlaatseweg 41
Door Edwin en Nick kregen wij een realistisch beeld van de huidige woningmarkt. De service was echt top, elke vraag die we hadden werd tot o...
-
Bakkersveld 29
De contacten met Edwin, Nick en Jan waren erg plezierig. We konden altijd bij ze terecht als we ergens even hulp bij nodig hadden of ergens...
-
Meester Hofstraat 23
Direct, fijn en prettig contact en een eerlijk advies kregen wij voor de verkoop van onze woning.